モデルハウス

HOME | モデルハウス

川合高岡駅東

 
津市 一志町八太

モデルハウス 外観パース

モデルハウス


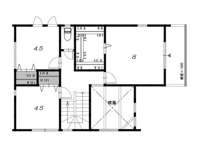
1階 間取り図

1F

 
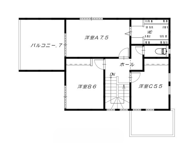
2階 間取り図

2F

 



物件概要


 

耐震等級 3(最高等級)
断熱等級 5(ZEH水準)
一次エネ消費量等級 6(最高等級)

 
国が設けた住宅の品質に関する基準に対して、第三者評価機関が客観的、かつ公平に評価したものです。

設計性能評価ラベル

長期優良住宅

 

長期優良住宅

 

  • 所管行政庁の厳しい基準をクリアし認定された住宅です。
  • 税制優遇があります。税金が安くなります。
  • 新築の固定資産税が1/2になる減税措置がありますが、その優遇期間が延長されます。一般住宅が3年間のところ、長期優良住宅なら5年間の減税を受けることができます。
  • 地震保険料の割引があります。耐震等級3なら50%の割引率が適用されます。
  • 高い性能によって快適かつ安心して暮らせる家になり、次の世代にも住み継げる住まいになります。

設備

玄関ドア リモコンキー
 

ドアのボタンを押してワンタッチで開錠できます。
買い物帰りやお子様を抱っこして手がふさがっているときにも便利です。

電動シャッター
 

毎日のことだから、電動シャッターで楽々開閉!
窓を閉めたまま室内からボタン1つで簡単に静かに開閉し、不快な外気や虫も入らず快適です。

タッチレス水栓

 
汚れた手でも非接触でさっと洗浄できます。

食器洗い乾燥機

 
食器洗い乾燥機で皿洗いも楽々!
家事の時間を軽減してゆとりが生まれます。
手洗いに比べて使用水量を大きく減らせるので経済的です。

アルミ樹脂複合窓

 
アルミと樹脂の複合サッシを採用しました。高い断熱性があります。
室外側にLow-Eガラスを採用し、特殊金属膜の効果で夏期の日射を遮り冷房負荷を大幅に軽減するとともに、冬期の室内の熱を逃さず暖房負荷も軽減します。

エアコン2台付き

 
エアコン2台付きで快適生活を応援します。
新生活の初期費用を抑えることができます。

宅配ボックス
 

不在時でも荷受けができて助かる!
面倒な再配達のお願いをする必要がなくなります。
共働きにも嬉しい設備です。

EV用コンセント

 
EVを購入しても工事なしですぐに自宅充電が可能です。

浴室 換気乾燥暖房機

 
雨の日や花粉シーズンにも気にせず洗濯物が浴室内に干せる浴室暖房乾燥機。カビ発生の抑制ができます。脱衣所も暖かくなることにより、温度差による体への負担を軽減することも出来ます。

ハンガーバー
ダイケン畳

 
カビの発生やダニの増殖を抑えて、快適さを長くキープ。
汚れや日焼けに負けず、美しさをキープします。
耐摩耗性に優れており、ひっかいても傷がつきにくいです。

 


構造

耐震等級3

耐震等級3(最高等級)

 
地震に強い家です。
【耐震等級3】は、【耐震等級1】の1.5倍の耐震性を備えています。
弊社では一般的に用いられる簡略な構造計算ではなく、「許容応力度計算」を行いより高い耐震性を確保しています。

硬質ウレタンフォーム吹付断熱

硬質ウレタンフォーム吹付断熱

 
住宅の隅から隅まで家全体をスッポリと覆ってしまう「現場吹付け断熱」を採用しています。
無数の細かい連続気泡で構成されたウレタンフォームは、高い断熱効果を発揮します。また透湿性も低く、断熱材内部への湿気の侵入を防ぐ効果もあり、躯体内の結露を抑制し、建物の耐久性を高めてくれます。

制震ダンパー ブレースリーK型 説明

制震ブレース
ブレースリーK型


タイガーEXハイパー 耐力面材

タイガーEXハイパー
耐力面材


ベタ基礎

ベタ基礎

 
べた基礎は建物下全面が鉄筋コンクリートの面構造になっているので、家の荷重が分散され、不同沈下や地震に強いことが実証されています。
また床下一面がコンクリートなのでシロアリ対策にもなります。



電話お問い合わせ